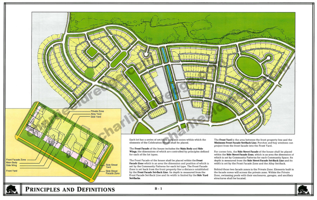
Pattern Book ________PPrinter-Friendly Version_________ Next Page___ Previous Page